Cam kết 100% chính hãng
Giao hàng tận chân công trình
Đồng kiểm khi nhận nhận hàng
Hỗ trợ kỹ thuật 24/7
Khuyến mãi đặc biệt !!!
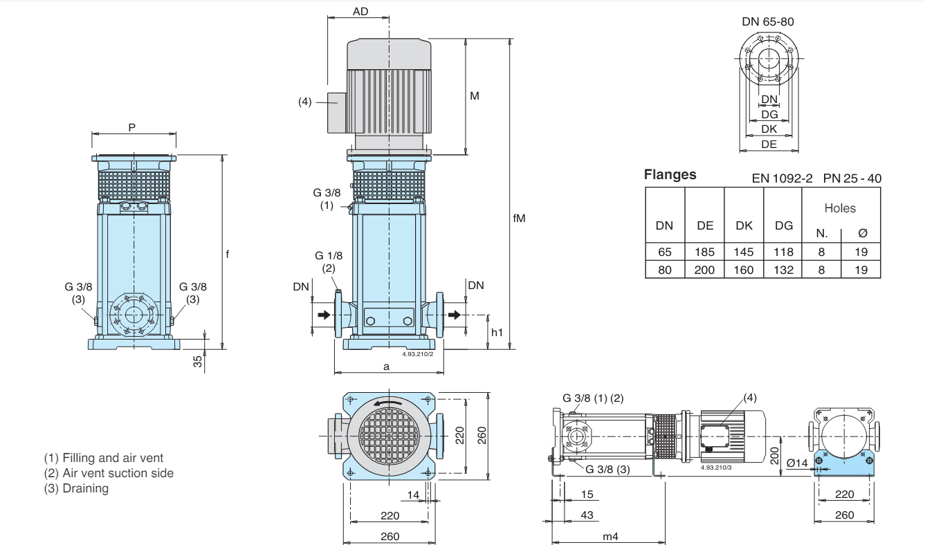
Máy bơm ly tâm trục đứng đa tầng cánh là dòng máy bơm ly tâm có trục thẳng đứng, với cánh quạt có từ 2 tầng trở lên xếp chồng lên nhau theo chiều dọc giúp tạo ra lực đẩy mạnh, giúp bơm hoạt động mạnh hơn, tốt hơn so với dòng máy bơm ly tâm trục đứng đơn tầng cánh.
- Máy bơm nhiều tầng trục đứng có kết nối hút- đẩy và phân phối có cùng đường kính và bố trí dọc theo cùng một trục (nội tuyến).
- Ống bọc ổ trục chống ăn mòn được bôi trơn bằng chất lỏng được bơm.
- Loại bỏ phốt cơ khí mà không cần tháo dỡ động cơ (đối với MXV 25-32-40-50.100 có động cơ trên 4 KW).
- Một máy bơm có ổ đỡ lực đẩy và khớp nối ống bọc để sử dụng bất kỳ động cơ tiêu chuẩn với cấu trúc IM V1.
- Đối với hệ thống cấp nước.
- Dành cho chất lỏng sạch, không nổ, không có chất rắn, dạng sợi hoặc chất mài mòn (có thể điều chỉnh vật liệu bịt kín theo yêu cầu).
- Máy bơm đa năng dùng trong dân dụng và công nghiệp, cho hệ thống tăng áp, nhà máy rửa áp lực cao, tưới tiêu, sử dụng trong nông nghiệp và thể thao.
- Nhiệt độ chất lỏng: từ -15°C đến +110°C.
- Nhiệt độ môi trường hoạt động: lên tới 40°C.
- Áp suất tối đa cho phép trong vỏ bơm: 25 bar. (16 bar đối với máy bơm có mặt bích hình bầu dục).
- Loại tiêu chuẩn: Động cơ cảm ứng 2 cực, 50 Hz (n ≈ 2900 vòng/phút).
- Xây dựng IM V1 (EN 60034-7).
- Động cơ thích hợp để vận hành với bộ biến tần.
- Cấp hiệu suất IE3 cho động cơ ba pha.
- Lớp cách điện F. Bảo vệ IP 55.
- Ba pha có điện áp định mức: đến 3 kW 230/400 V; từ 4 kW 400/690 V.
Các bộ phận bên trong tiếp xúc với chất lỏng bằng thép không gỉ crom-niken AISI 304 với mặt bích, khung đèn và đế bằng gang.
- Mặt bích, Áo khoác ngoài, Vỏ hút, Vỏ giao hàng, Vỏ sân khấu, cánh quạt, Tay áo đệm bằng: Thép không gỉ (AISI 304)
- Trục bơm bằng thép không gỉ (AISI 304)
- Vòng bi bằng gốm alumina
- Phốt cơ khí bằng Kim loại cứng/Carbon/EPDM.
Chiều quay: theo chiều kim đồng hồ khi nhìn từ động cơ.
- Bơm có cổng mặt bích (F).
- Bơm có cổng mặt bích hình bầu dục (O).
- Bơm không có động cơ.
- Máy bơm có động cơ tiêu chuẩn.
- Vòng chữ O FPM.
- Con dấu cơ khí khác.
- Máy bơm có động cơ do Khách hàng lựa chọn (nếu có).
- Động cơ một pha 230 V, công suất lên tới 2,2 kW.
- Bơm có chân đỡ để lắp đặt nằm ngang (H1 hoặc H2).
- Xếp hạng điện áp khác. Tần số 60 Hz.
Các bộ phận bên trong tiếp xúc với chất lỏng bằng thép không gỉ mạ crôm-niken AISI 304 với vỏ bơm và nắp trên bằng gang.
- Vỏ bơm và nắp bơm bằng gang
- Cánh quạt bằng thép không gỉ (AISI 304)
- Trục bơm và ổ cắm bằng thép không gỉ (AISI 304)
- Vòng bi: cacbua xi măng, chống ăn mòn; Vòng bi trong: Gốm alumina (Cacbua xi măng chống ăn mòn cho MXV 100)
- Con dấu cơ khí bằng Kim loại cứng/Carbon/EPDM
Chiều quay: ngược chiều kim đồng hồ nhìn từ động cơ. (theo chiều kim đồng hồ khi nhìn từ động cơ cho MXV 100)
- Bơm không có động cơ.
- Máy bơm có động cơ tiêu chuẩn.
- Vòng chữ O FPM.
- Con dấu cơ khí khác.
- Máy bơm có động cơ do Khách hàng lựa chọn (nếu có).
- Xếp hạng điện áp khác.Tần số 60 Hz.
- Máy bơm có chân đỡ để lắp đặt nằm ngang (H1 hoặc H2) MXV 100 loạt bị loại trừ.

Tuổi thọ dài với động cơ tiêu chuẩn
Máy bơm có ổ đỡ chặn mà không chịu thêm tải trọng dọc trục lên ổ trục động cơ. Bất kỳ thiết kế động cơ V1 tiêu chuẩn nào (phù hợp để nâng ở vị trí thẳng đứng) đều có thể được sử dụng theo lựa chọn của chúng tôi hoặc Khách hàng lựa chọn.
Lắp ráp động cơ dễ dàng
Với khớp nối ống bọc một mảnh, bộ phận bơm có thể được cung cấp ở dạng lắp ráp hoàn chỉnh mà không cần động cơ. Điều này giúp loại bỏ nguy cơ hư hỏng do dịch chuyển trục bơm trong quá trình vận chuyển.
Động cơ được lắp đơn giản vào khớp nối và gắn chặt vào mặt bích mà không cần điều chỉnh vị trí trục của trục bơm.

Con dấu cơ khí có thể tháo rời
Dễ dàng tháo phốt cơ khí
mà không cần tháo động cơ
(đối với MXV 25,32,40,50 và MXV 100 có động cơ trên 4 KW).
An toàn bổ sung
Bộ phận bảo vệ khớp nối một mảnh chỉ được tháo ra bằng một dụng cụ, được đặt xung quanh giá đỡ đèn lồng, do đó tránh vô tình đẩy và cọ xát vào khớp nối.
Lắp đặt chi phí thấp
Cấu trúc thẳng đứng với chiều cao bơm giảm để lắp đặt trong không gian nhỏ. Kết nối nội tuyến để đơn giản hóa việc bố trí đường ống với khả năng lắp máy bơm vào đường ống thẳng.
Tháo rời, kiểm tra hoặc làm sạch các bộ phận bên trong mà không cần tháo đường ống.
Mạnh mẽ và đáng tin cậy
Cấu trúc PN25 đơn cho tất cả các kích cỡ máy bơm. Các vòi hút và xả được bố trí thẳng hàng sẽ hấp thụ lực của đường ống lên máy bơm mà không tạo ra tải trọng biến dạng gây ra ma sát cục bộ và mài mòn sớm. Giá đỡ đèn lồng có thiết kế nhỏ gọn và chắc chắn duy trì sự liên kết chắc chắn giữa các bộ phận quay và cố định, giảm độ rung. Thiết kế nắp trên ngăn không khí lọt vào xung quanh phốt cơ khí.
Hoạt động ít tiếng ồn
Nước chứa đầy bao phủ xung quanh các sân khấu và các bức tường dày bên ngoài, phối hợp với nhau để vận hành với độ ồn thấp. Động cơ tiêu chuẩn có độ ồn thấp.
_______________________________________________________
Dòng máy bơm ly tâm trục đứng đa tầng cánh MXV là dòng bơm thường được sử dụng với các trường hợp yêu cầu lưu lượng lớn, cột áp cao, phù hợp với các công trình, dự án Building, HVAC, công nghiệp và nông nghiệp.
Được cải tiến hướng tới sự đồng bộ và chất lượng hơn, bạn có thể sử dụng sang cùng dòng máy bơm ly tâm trục đứng đa tầng cánh biến tần MXV EI hoặc Máy bơm ly tâm trục đứng đa tầng cánh bằng thép không gỉ MXVL.
Hiện nay HTintech phân phối rất nhiều dòng máy bơm ly tâm thuộc các hãng uy tín khác nhau, như: Máy bơm điện ly tâm Speroni/Ý, Máy bơm điện ly tâm Rovatti/Ý, Máy bơm ly tâm Grundfos/Đan Mạch.....
Liên hệ ngay để được tư vấn và hỗ trợ về thông tin sản phẩm nhanh nhất!
Công ty TNHH Đầu Tư Công Nghệ Và Thiết Bị HT
HTintech - Đồng hành cùng phát triển.
Cam kết hàng chính hãng 100%, đầy đủ CO, CQ, PL, giá cả cạnh tranh nhất trên thị trường!
Bước 1: Truy cập website và lựa chọn sản phẩm cần mua
Bước 2: Click và sản phẩm muốn mua, màn hình hiển thị ra pop up với các lựa chọn sau
Nếu bạn muốn tiếp tục mua hàng: Bấm vào phần tiếp tục mua hàng để lựa chọn thêm sản phẩm vào giỏ hàng
Nếu bạn muốn xem giỏ hàng để cập nhật sản phẩm: Bấm vào xem giỏ hàng
Nếu bạn muốn đặt hàng và thanh toán cho sản phẩm này vui lòng bấm vào: Đặt hàng và thanh toán
Bước 3: Lựa chọn thông tin tài khoản thanh toán
Nếu bạn đã có tài khoản vui lòng nhập thông tin tên đăng nhập là email và mật khẩu vào mục đã có tài khoản trên hệ thống
Nếu bạn chưa có tài khoản và muốn đăng ký tài khoản vui lòng điền các thông tin cá nhân để tiếp tục đăng ký tài khoản. Khi có tài khoản bạn sẽ dễ dàng theo dõi được đơn hàng của mình
Nếu bạn muốn mua hàng mà không cần tài khoản vui lòng nhấp chuột vào mục đặt hàng không cần tài khoản
Bước 4: Điền các thông tin của bạn để nhận đơn hàng, lựa chọn hình thức thanh toán và vận chuyển cho đơn hàng của mình
Bước 5: Xem lại thông tin đặt hàng, điền chú thích và gửi đơn hàng
Sau khi nhận được đơn hàng bạn gửi chúng tôi sẽ liên hệ bằng cách gọi điện lại để xác nhận lại đơn hàng và địa chỉ của bạn.
Trân trọng cảm ơn.
1. BẢO HÀNH
Bảo hành sản phẩm là: khắc phục những lỗi hỏng hóc, sự cố kỹ thuật xảy ra do lỗi của nhà sản xuất.
1.1. Quy định về bảo hành
– Sản phẩm được bảo hành miễn phí nếu sản phẩm đó còn thời hạn bảo hành được tính kể từ ngày giao hàng, sản phẩm được bảo hành trong thời hạn bảo hành ghi trên Sổ bảo hành, Tem bảo hành và theo quy định của từng hãng sản xuất liên quan đến tất cả các sự cố về mặt kỹ thuật.
– Có Phiếu bảo hành và Tem bảo hành của công ty hoặc nhà phân phối, hãng trên sản phẩm. Trường hợp sản phẩm không có số serial ghi trên Phiếu bảo hành thì phải có Tem bảo hành của CÔNG TY DOLA (kể cả Tem bảo hành gốc).
1.2. Những trường hợp không được bảo hành
– Sản phẩm đã hết thời hạn bảo hành hoặc mất Phiếu bảo hành.
– Số mã vạch, số serial trên sản phẩm không xác định được hoặc sai so với Phiếu bảo hành.
– Tự ý tháo dỡ, sửa chữa bởi các cá nhân hoặc kỹ thuật viên không phải là nhân viên CÔNG TY DOLA
– Sản phẩm bị cháy nổ hay hỏng hóc do tác động cơ học, biến dạng, rơi, vỡ, va đập, bị xước, bị hỏng do ẩm ướt, hoen rỉ, chảy nước, động vật xâm nhập vào, thiên tai, hỏa hoạn, sử dụng sai điện áp quy định.
– Phiếu bảo hành, Tem bảo hành bị rách, không còn Tem bảo hành, Tem bảo hành dán đè, hoặc Tem bảo hành bị sửa đổi (kể cả Tem bảo hành gốc).
– Trường hợp sản phẩm của Quý khách hàng dán Tem bảo hành của CÔNG TY DOLA hay nhầm lẫn thông tin trên Phiếu bảo hành, Phiếu mua hàng: Trong trường hợp này, bộ phận bảo hành sẽ đối chiếu với số phiếu xuất gốc lưu tại Công ty, hóa đơn, phần mềm của Công ty hay thông tin của nhà phân phối, hãng, các Quý khách hàng khác mua cùng sản phẩm cùng thời điểm, nếu có sự sai lệch thì sản phẩm của Quý khách không được bảo hành (có thể Tem bảo hành của Công ty bị thất thoát và bị lợi dụng dán lên thiết bị hay nhầm lẫn nhỏ khi nhập, in ra). Kính mong Quý khách hàng thông cảm!
– Bảo hành không bao gồm vận chuyển hàng và giao hàng.
2. BẢO TRÌ
Bảo trì, bảo dưỡng: bao gồm lau chùi sản phẩm, sửa chữa những hỏng hóc nhỏ có thể sửa được (không bao gồm thay thế thiết bị). Thời gian bảo trì, bảo dưỡng tùy thuộc vào sự thỏa thuận giữa DOLA và Quý khách hàng.